
Cammino Vista – „Weg mit Ausblick“ – verbindet die Idee des Unterwegsseins mit der Weite des Gardasees.
Das Haus versteht sich als Ziel und Zwischenstation zugleich: ein Ort für Wanderer und Pilger, an dem der Weg in die Aussicht übergeht. Architektur und Landschaft verschmelzen zu einem räumlichen Erlebnis, das Bewegung, Ankommen und Panorama in einem klaren Konzept vereint.
Cammino Vista liegt am Hang über dem Gardasee mit freiem Blick nach Westen – ein Ort, an dem Architektur und Landschaft in einen unmittelbaren Dialog treten. Konzipiert als luxuriöse Unterkunft für Wanderer und Pilger, eignet sich das Haus ebenso als hochwertige Ferienwohnung für längere Aufenthalte.
Das Gebäude erstreckt sich über drei Ebenen und umfasst vier Schlafzimmer für insgesamt acht Personen sowie drei Bäder. Eine großzügige Küche zur Selbstversorgung bildet das funktionale Herzstück, ergänzt durch einen Essbereich und eine Vorratskammer. Auf jeder Etage lädt ein eigener Loungebereich zum Verweilen ein – Rückzugsorte mit Blick in die Weite des Sees.
Der Zugang erfolgt wahlweise über das Erdgeschoss auf der Seeseite mit Abstellraum für Fahrräder oder vom Hang aus im ersten Obergeschoss. Ein großer Panoramabalkon öffnet den Wohnraum zur Landschaft; darunter erweitert eine gleich große Terrasse den Außenbereich. So entsteht ein vielschichtiges Raumgefüge, das Bewegung, Ausblick und Aufenthalt auf besondere Weise miteinander verbindet.








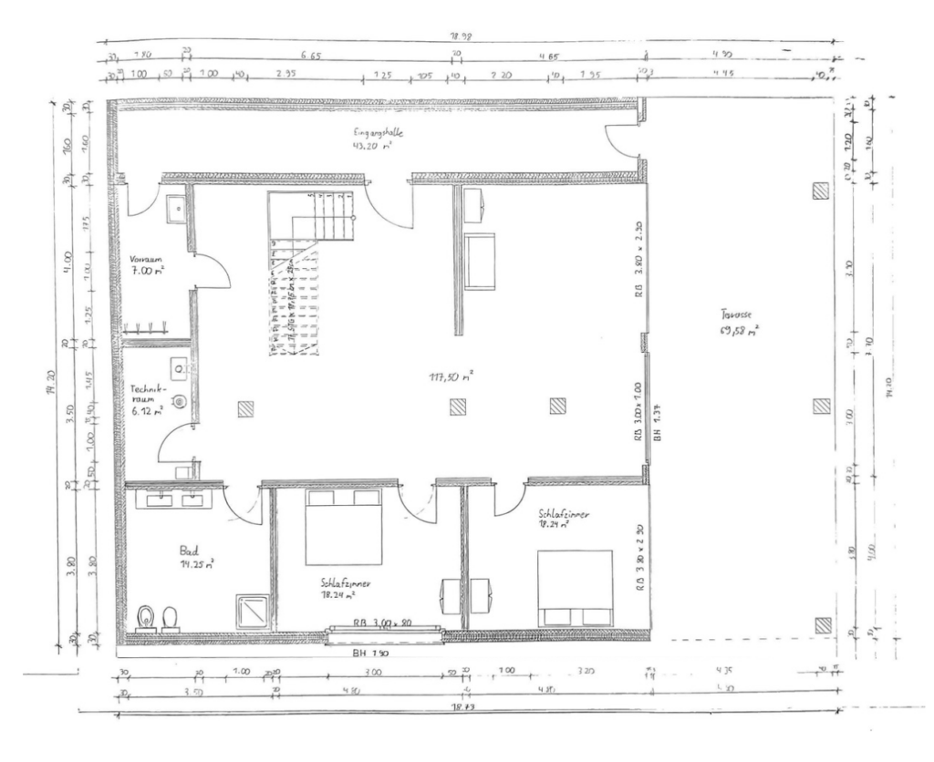
Das Erdgeschoss besteht aus einem langen Gang, der sowohl zur Eingangstür, als auch zum Abstellraum führt und einem Technikraum. Von der Eingangshalle zweigen zwei Doppelschlafzimmer, ein großes Bad, die Lounge mit Seeblick, der Technikraum und der anfangs genannte Abstellraum ab, der sowohl von innen als auch von außen betretbar ist. Die Tür zur Terrasse kann geöffnet werden, um den Raum nach außen zu erweitern.

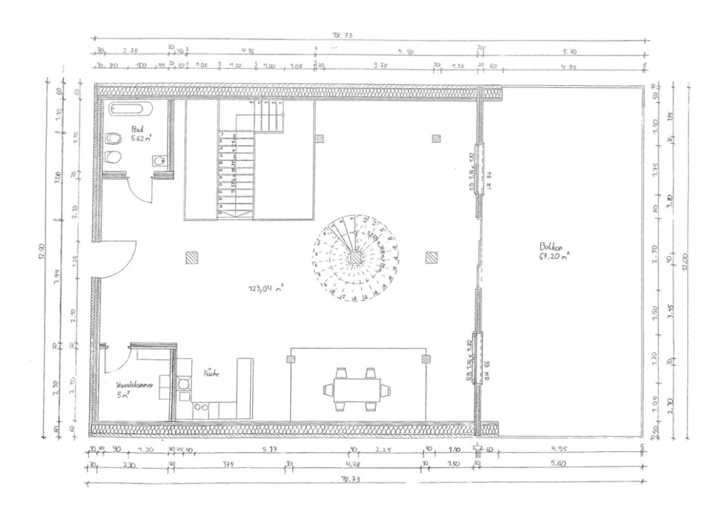
Im ersten Stock befindet sich ebenfalls ein Eingang, sowie eine Schiebetür zum Panoramabalkon. Ein offener Treppenraum verbindet die Eingangshalle im Erdgeschoss mit dem vielseitigen Aufenthaltsraum im Obergeschoss, der eine offene Küche, einen Essbereich auf einem Podest, sowie einen Loungebereich in Richtung Balkon beinhaltet.
Eine kleine Vorrats-/ und Abstellkammer, sowie ein Bad sind außerdem vorhanden.

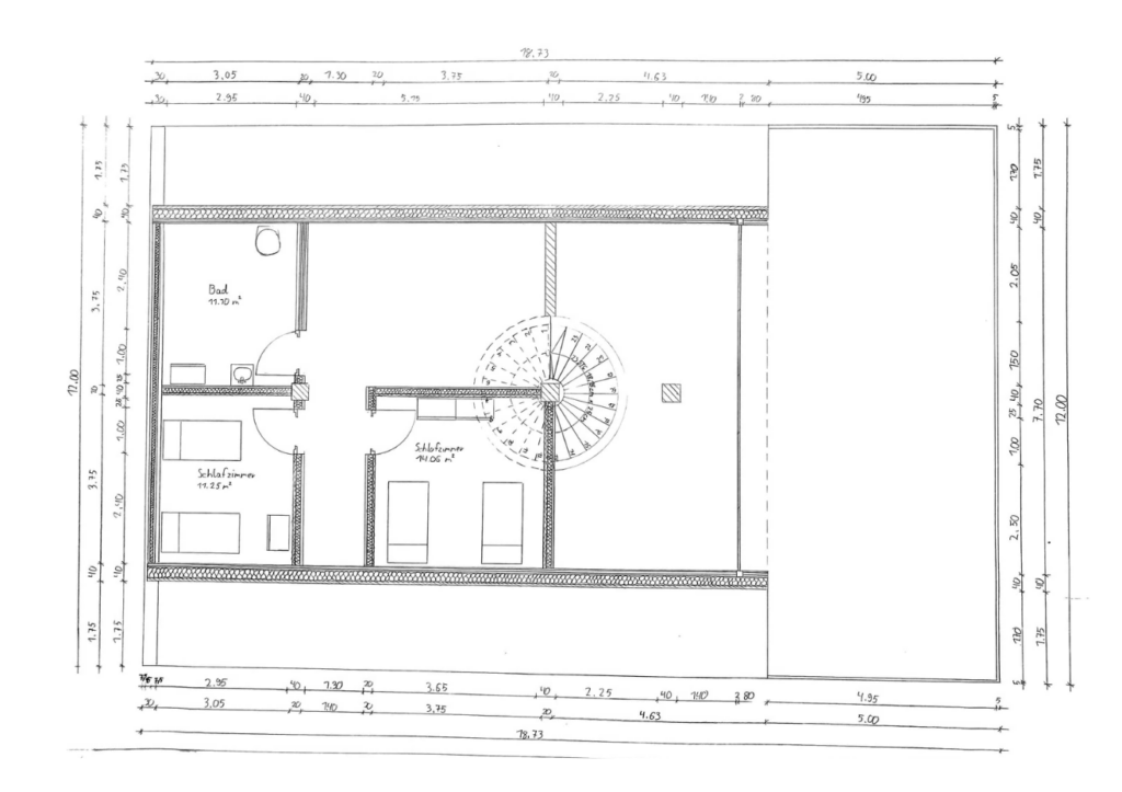
Eine zentrale Spindeltreppe mit Glas-geländer führt ins Dachgeschoss, das einen offenen Loft-Bereich, mit Blick sowohl auf den Wohnbereich als auch auf den See bietet. Außerdem gibt es zwei Doppel-zimmer mit Einzelbetten und einem kleinen Bad. Hier sind beide Giebelseiten verglast, sodass der Wohnraum nicht nur den See, sondern auch die leuchtenden Farben der Vegetation mit einschließt.







2OG: 2 Doppelschlafzimmer, Badezimmer, offener Loft-Bereich
1OG: Küche, Vorratskammer/Stauraum, Badezimmer, Essbereich, offener Loungebereich, Balkon
EG: 2 Doppelschlafzimmer, Badezimmer, Technikraum, Garage mit separatem Eingang, Loungebereich





